Вхід на сайт

Ел. пошта:
Пароль:

Реєстрація на сайті

Призвіще: Область:
Ім'я: Населений пункт:
    По батькові: Номер телефону:
    Ел. пошта: Компанія:
      Пароль: Посада:
      Повторіть пароль: Рік початку роботи:
      Фото:
      З правилами розміщення об'єктів погоджуюсь

      Забули пароль?

      Вкажіть ел. пошту — ми надішлемо Вам новий пароль для входу
      Ел. пошта:

      Проблема на сайті

      Закрити
      Ваш e-mail:
      (необов'язково)
      Розкажіть нам, що сталось

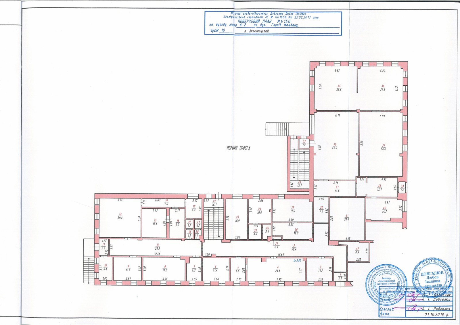
      без комісії ул. Театральная, 10 — Продається торгівельний майданчик

      (г. Хмельницкий, Центр)

      1683000 $

      Загальна площа: 1680 кв.м

      Поверх: 1

      К-ть поверхів: 3

      Продам комерційне приміщення в центрі міста, поруч з податковою. вул.Героїв майдану, 10.
      Площа: 1870 кв.м.(3 поверха по +/-600кв.м.)
      Вартість: вказана ціна + витрати по переоформленню.
      Два повноцінних поверха та цоколь-підвал. Декілька входів-виходів.
      Приміщення наразі кабінетного типу, легко переплановується, несучих стін всередині майже немає. Свій паркінг, заїзд з вул.Грушевського. Світло 24/7, 100кВт. (Світло, вода, каналізація - міські. Газ та централізоване опалення обрізані, при необхідності приєднати можна)
      Стан - радянський, задовільний, на більшій частині приміщень знаходяться орендарі.
      Можливо використання під любий вид діяльності.
      Пропозиція від представника власника. Показ по попередній домовленості.

      Надіслати скаргу

      Закрити
      Поскаржитися на об'єкт «ул. Театральная, 10 (г. Хмельницкий, Центр)»
      Ваш коментар:(Необов'язково)
      Ваша скарга буде надіслана ріелтору, що розмістив об'єкт, а також адміністрації сайту АФНУ.
      Ваше ім'я:
      (Обов'язково)
      Ваш e-mail для відповіді:
      (Обов'язково)

      Коментарі