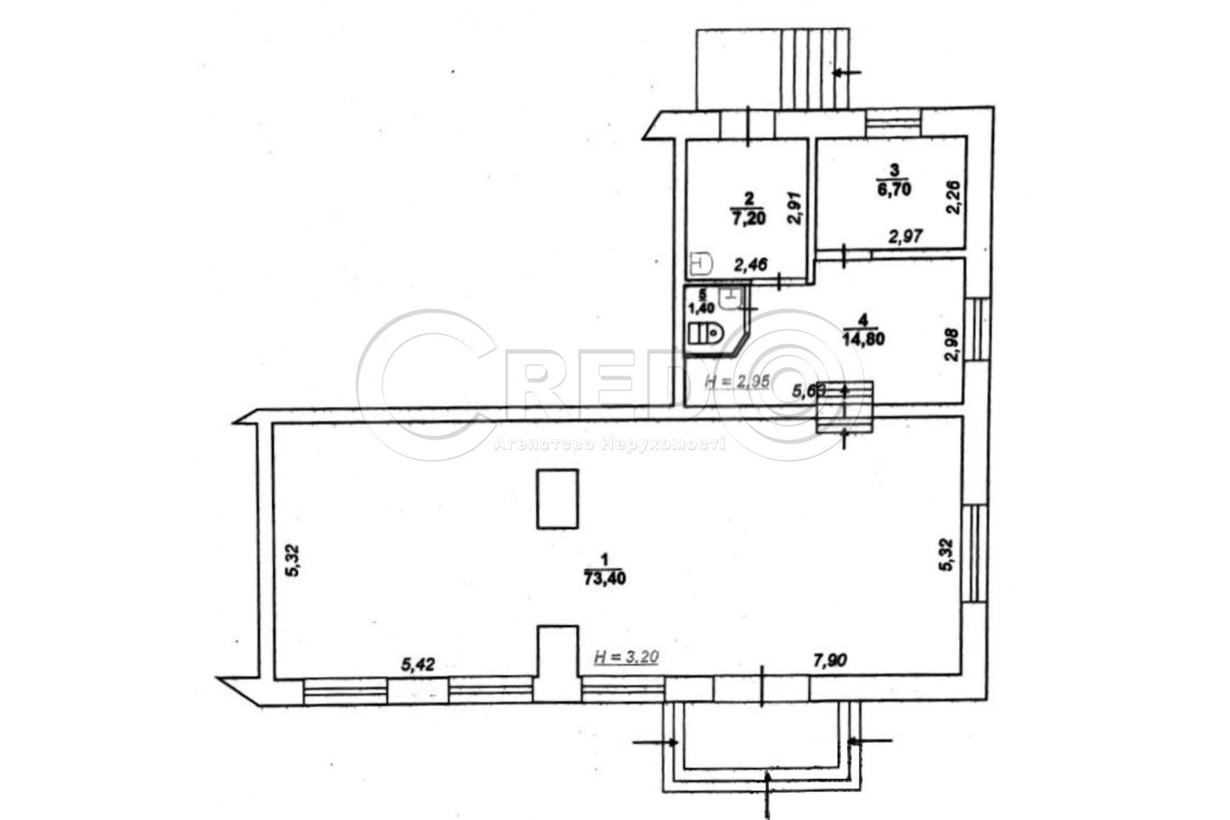
Пр. Університетський, 3 (Гагаріна) Саксаганський район - загальна площа-103 кв.м - торгівельний зал-73,4 кв.м - висота стелі - Н= 3,20 м
Комунікації: - центральне електропостачання 12 кВт; 380 Вт - центральне водопостачання - центральна каналізація - автономне газове опалення - приточено - витяжна система кондиціювання - пожежна та охоронна система.
Логістична розв’язка: - головна вулиця міста - розташоване приміщення по «червоній лінії» - парковка біля магазину - зручний під'їзд - великий пішохідний та проїздний трафік.
Особливості приміщення: - магазин в робочому стані - ремонтні роботи обговорюються при зустрічі - має завантажувальний вхід з рампою - магазин кутовий
Додаткові платежі: - світло, вода-лічильники - опалення газове- лічильник - охоронна, пожежна сигналізації - інтернет - послуги ЖКХ - послуга агенції- 50% по факту оренди
Вартість оренди - 400 грн/кв.м.
За будь-якими питаннями за цією або схожими пропозиціями звертайтесь за номером телефону 067 696 16 51.