Вхід на сайт

Ел. пошта:
Пароль:

Реєстрація на сайті

Призвіще: Область:
Ім'я: Населений пункт:
    По батькові: Номер телефону:
    Ел. пошта: Компанія:
      Пароль: Посада:
      Повторіть пароль: Рік початку роботи:
      Фото:
      З правилами розміщення об'єктів погоджуюсь

      Забули пароль?

      Вкажіть ел. пошту — ми надішлемо Вам новий пароль для входу
      Ел. пошта:

      Проблема на сайті

      Закрити
      Ваш e-mail:
      (необов'язково)
      Розкажіть нам, що сталось

      ул. Пушкина — Здається торгівельний майданчик

      (г. Кривой Рог, Центрально-Городской район)

      25000 грн.

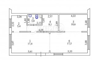
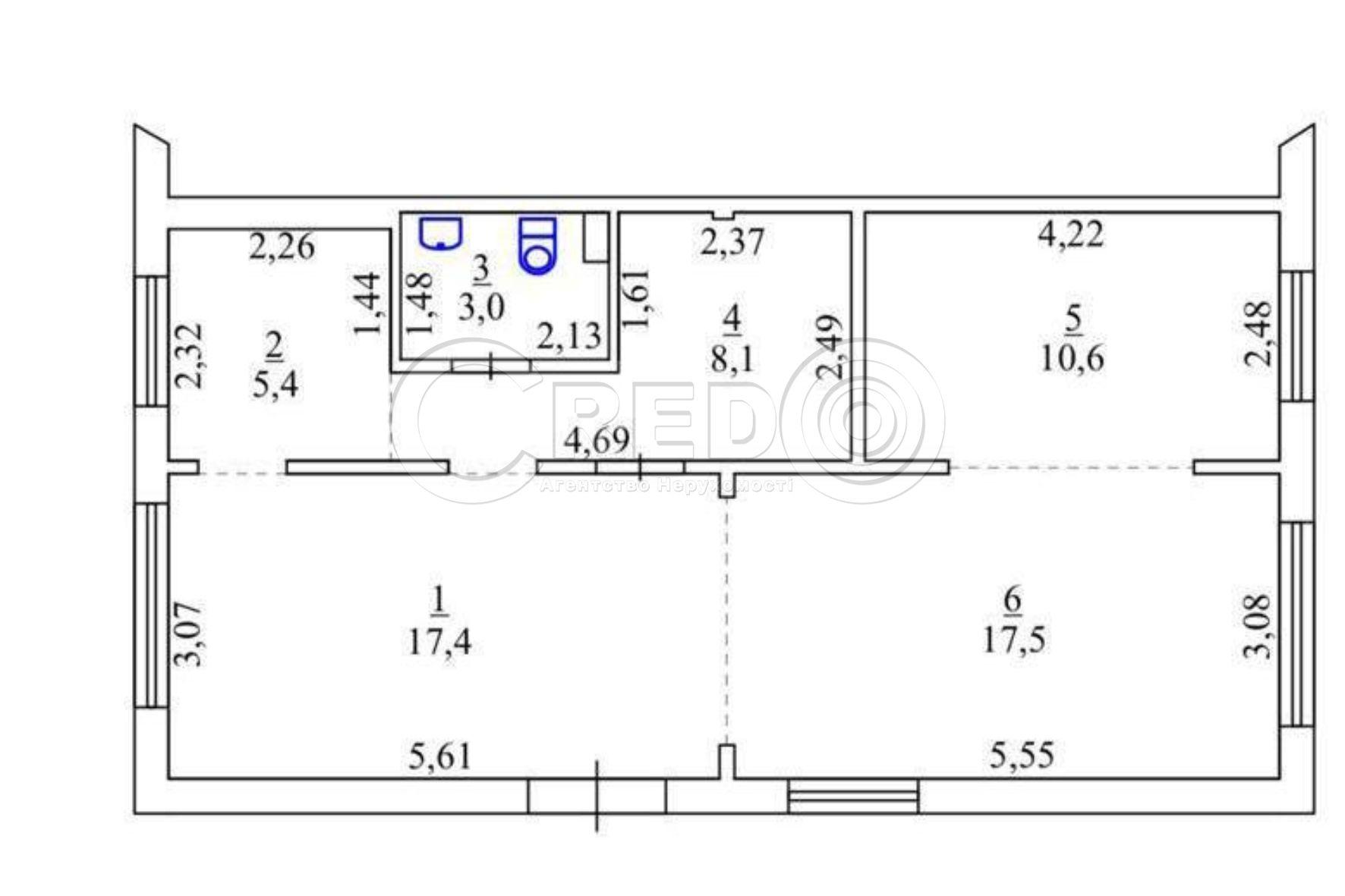
      Загальна площа: 62 кв.м

      Поверх: 1

      К-ть поверхів: 5

      Оренда магазину по вул. Гірничих інженерів (Пушкіна):
      - Центрально-Міський район
      - "червона лінія"
      - приміщення після ремонту

      Про об’єкт:
      - загальна площа-62 кв.м
      - торгівельна зала-34,9 кв.м
      - висота стелі- 2.60 м
      - перший поверх 5-ти поверхового будинку
      - окремий вхід

      Комунікації:
      - центральне електропостачання 15 кВт; 380 Вт
      - центральне водопостачання, каналізація
      - центральне опалення
      - кондиціонер
      - пожежна, охоронна сигналізації

      Логістична розв’язка:
      - магазин розташований біля площі Визволення
      - "червона лінія"
      - безліч комерційних магазинів
      - учбові заклади
      - автомобільний та пішохідний трафік
      - проїздна частина міста

      Додаткові платежі:
      - оплата по лічильникам - світло, вода
      - опалення в сезон
      - інтернет, охорона
      - послуги ЖКХ
      - 50% - послуга агенції.
      Оренда - 25 000грн

      За будь-якими питаннями за цією або схожими пропозиціями звертайтесь за номером телефону 067 696 16 51.

      З повагою, команда Credo!

      Надіслати скаргу

      Закрити
      Поскаржитися на об'єкт «ул. Пушкина (г. Кривой Рог, Центрально-Городской район)»
      Ваш коментар:(Необов'язково)
      Ваша скарга буде надіслана ріелтору, що розмістив об'єкт, а також адміністрації сайту АФНУ.
      Ваше ім'я:
      (Обов'язково)
      Ваш e-mail для відповіді:
      (Обов'язково)

      Вам также могут подойти

      ул. Лебедева-Кумача (г. Кривой Рог, Центрально-Городской район) - Продається торгівельний майданчик, 28000 $ - АФНУ

      Оновлено: 12 серпня

      Розміщено: 25 лютого 2019

      Продається торгівельний майданчик

      площа 53, поверх 1/1

      г. Кривой Рог, ул. Лебедева-Кумача

      28000 $

      Літвинова Ірина Вікторівна

      Пропонуємо продаж нежитлової, окремо розташованої будівлі, вільного призначення в Центрально-міському р-ні, вул. Лебедєва-Кумача (Цетр. Міський ринок)

      Про об'єкт:
      - загальна площа - 53,4 кв.м
      - земельна ділянка - 15 соток…

      Детальніше

      ул. Лермонтова (г. Кривой Рог, Центрально-Городской район) - Здається торгівельний майданчик, 20000 грн. - АФНУ

      Оновлено: 14 серпня

      Розміщено: 5 травня

      Здається торгівельний майданчик

      поверх 1/5

      г. Кривой Рог, ул. Лермонтова

      20000 грн.

      Літвинова Ірина Вікторівна

      Оренда магазину пр. Центральний
      - Центрально Міський район
      - пр.Центральний (вул. Лермонтова)
      - зупинка "Центральний ринок"

      Технічні характеристики:
      - перший поверх п’ятиповерхового житлового будинку
      - окремий вхід
      - завантажувальний вхід…

      Детальніше

      ул. Софьи Перовской (г. Кривой Рог, Саксаганский район) - Продається торгівельний майданчик, 14800 $ - АФНУ

      Оновлено: 11 серпня

      Розміщено: 26 січня 2018

      Продається торгівельний майданчик

      площа 25, поверх 1/5

      г. Кривой Рог, ул. Софьи Перовской

      14800 $

      Літвинова Ірина Вікторівна

      Продається приміщення в районі зупинки «Площі В. Великого», вулиця Софії Перовської.

      Про об'єкт:
      - Загальна площа - 25,1 кв.м.

      Особливості:
      - Зроблений новий євроремонт 2022р.
      - Поміняна каналізація, проводка, бойлер…

      Детальніше

      Коментарі