Оренда приміщення, вул.Івана Авраменка, ринок «Вечіній» Окремо розташована будівля.
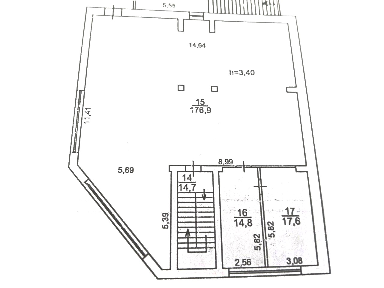
Технічні характеристики: - Приміщення розташоване на 2 поверсі 2-поверхової будівлі. - Загальна площа 210кв.м. - Висота стелі 3,40м. - Великі вітражні вікна - Місце для реклами
Планування об’єкту: - Просторий торгівельний зал. - Підсобне приміщення. - Два кабінети
Особливості об’єкту: - Приміщення знаходиться в доброму стані, стеля Армстронг, на підлозі кахель. - Великі вітражні вікна. - Парковка біля приміщення.
Логістична розв’язка: район з великим пішохідним трафіком. Поряд багато магазинів, кафе, зупинка.
За будь-якими питаннями за цією або схожими пропозиціями звертайтесь за номером телефону, де вам відповість наш ріелтор 098 985 09 08. З повагою, команда Credo!
Оренда приміщення, "Соцмісто", парк Б.Хмельницького. - Металургійний район - пр. Металургів, 5а - розташоване в центрі "Соцміста" - парк імені Б. Хмельницького