без комісії
ул. Симонова — Продається торгівельний майданчик
(г. Кривой Рог, Долгинцевский район)
22000 $
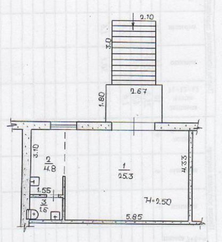
Загальна площа: 31 кв.м
Поверх: 1
К-ть поверхів: 9
Предлагается Вашему вниманию действующий продуктовый магазин по ул. Симонова, 1-Восточный, о.п.- 31,7м.кв, торг.площадь-25,3м.кв. Магазин в хорошем состоянии, все коммуникации. Магазин расположен в спальном районе, с большой плотностью населения. Мощность электроэнергии – 5 кВт, - Ввод 380V - Центральная канализация, - Центральное отопление - Бойлер, кондиционер. Цена продажи 22 000у.е Тел.067-696-16-51 Этот и другие объекты вы можете увидеть на сайте www.ancredo.com