Вхід на сайт

Ел. пошта:
Пароль:

Реєстрація на сайті

Призвіще: Область:
Ім'я: Населений пункт:
    По батькові: Номер телефону:
    Ел. пошта: Компанія:
      Пароль: Посада:
      Повторіть пароль: Рік початку роботи:
      Фото:
      З правилами розміщення об'єктів погоджуюсь

      Забули пароль?

      Вкажіть ел. пошту — ми надішлемо Вам новий пароль для входу
      Ел. пошта:

      Проблема на сайті

      Закрити
      Ваш e-mail:
      (необов'язково)
      Розкажіть нам, що сталось

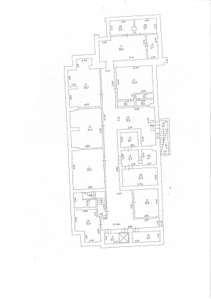
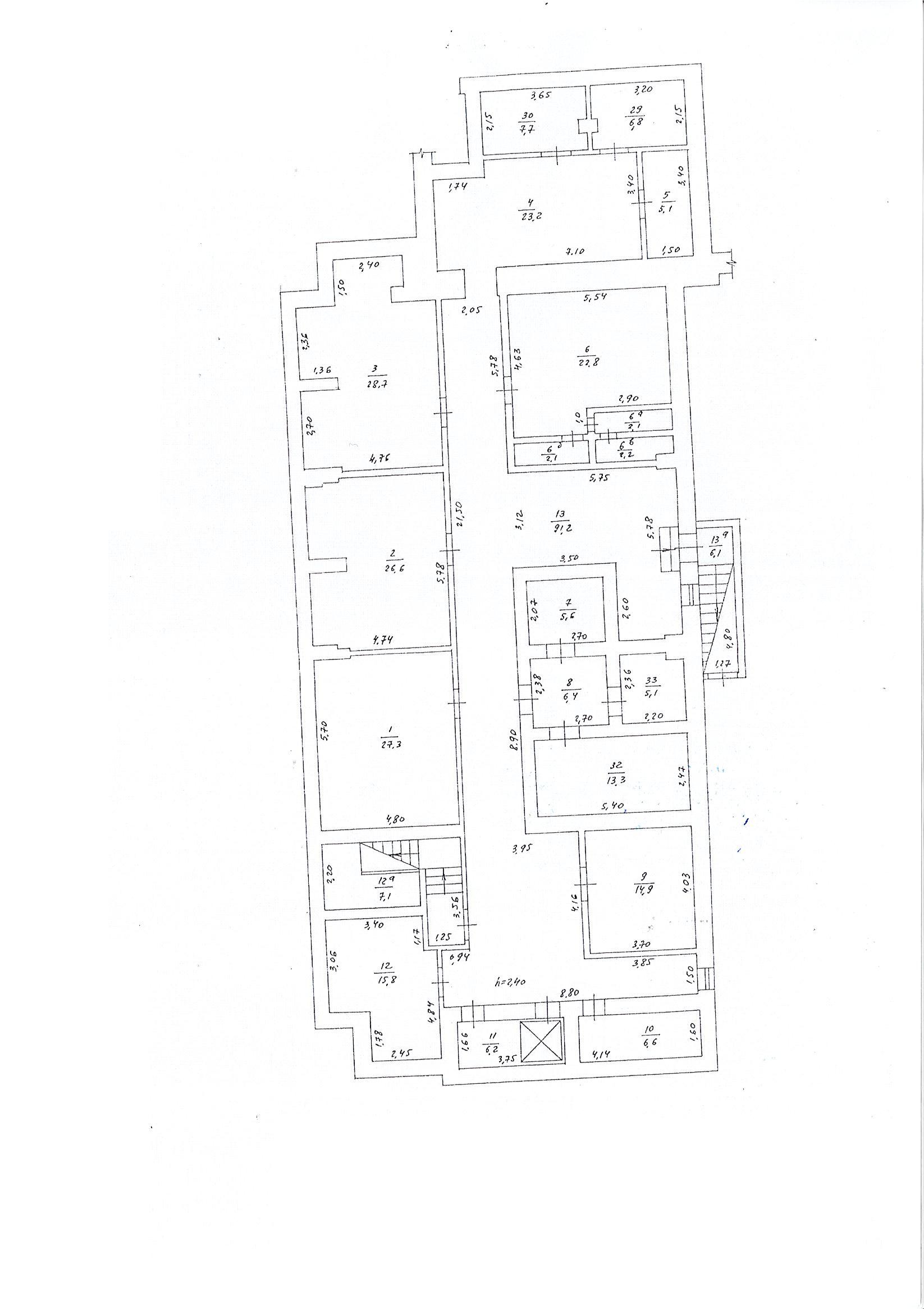
      ул. маршала Бирюзова — Продається торгівельний майданчик

      (г. Полтава, Киевский район)

      330000 $

      Загальна площа: 748 кв.м

      Поверх: 1

      К-ть поверхів: 1

      Продам нежилое помещение на Браилках.
      Продается нежилое помещение торгового назначения общей площадью 748м2. Площадь первого этажа 415м2. Торговый зал 210м2. Площадь подвала 333м2. Помещение требует ремонта. Есть рампа для разгрузки товара. Большая парковка. Цена договорная.

      Надіслати скаргу

      Закрити
      Поскаржитися на об'єкт «ул. маршала Бирюзова (г. Полтава, Киевский район)»
      Ваш коментар:(Необов'язково)
      Ваша скарга буде надіслана ріелтору, що розмістив об'єкт, а також адміністрації сайту АФНУ.
      Ваше ім'я:
      (Обов'язково)
      Ваш e-mail для відповіді:
      (Обов'язково)

      Коментарі