без комісії
ул. Менжинского, 72-А — Продається будинок
(г. Запорожье, Ленинский район)
60000 $
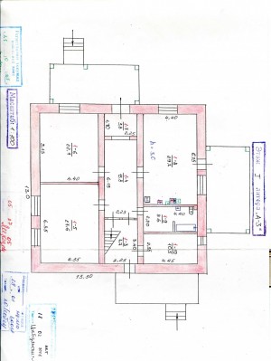
Загальна площа: 300 кв.м
Площа ділянки: 7 сот
Кімнат: 10
К-ть поверхів: 3
Предлагается к продаже большой, светлый, теплый трехэтажный Дом на правом берегу по улице Менжинского, в тихом месте с хорошо развитой инфраструктурой, рядом остановки общественного транспорта, магазины, высотные дома, добропорядочные солидные соседи. Дом строился для себя с учётом всех энергосберегающих технологий и расположен на земельном участке площадью 6.5 соток. В постройке и отделке использовался только качественный экологически чистый материал. Объект имеет нестандартную планировку и само строение и стены выполнено из «Инкерманских» блоков и шлифованного белого кирпича, фундамент монолитный железобетонный, кровля шифер. Общая площадь дома 300 м/кв, жилая 233 м/кв, кухня 30 м/кв. На первом этаже расположены кухня-гостиная площадью 30 м/кв, две спальных комнаты 22+28 м/кв, санузел 10 м/кв, и гардеробная 10,5 м/кв. Также на первом этаже имеется веранда и второй выход на дальнюю часть дома. Второй этаж имеет три спальных комнаты площадью 28+22+26 м/кв, санузел 10 м/кв, кабинет 10 м/кв, большой парадный балкон и терраса. Третий этаж нежилой и используется как складские помещения. Окна металло-пластиковые, медная электропроводка, сигнализация. Также под домом имеется два больших просторных и высоких для габаритных автомобилей гаража. Имеется газовый двухконтурный котел и как альтернативный твердотопливный котел длительного горения, что позволяет существенно экономить на отоплении. Ваше новое жилье готово к заселению и ключи от дома покупатель получает на сделке. Торг минимальный. Изменить Добавлено: в 09:23, 16 сентября 2020