Вхід на сайт

Ел. пошта:
Пароль:

Реєстрація на сайті

Призвіще: Область:
Ім'я: Населений пункт:
    По батькові: Номер телефону:
    Ел. пошта: Компанія:
      Пароль: Посада:
      Повторіть пароль: Рік початку роботи:
      Фото:
      З правилами розміщення об'єктів погоджуюсь

      Забули пароль?

      Вкажіть ел. пошту — ми надішлемо Вам новий пароль для входу
      Ел. пошта:

      Проблема на сайті

      Закрити
      Ваш e-mail:
      (необов'язково)
      Розкажіть нам, що сталось

      ул. Кацарская, 2/4 — Здається офіс

      (г. Харьков, Ленинский район)

      12 $ за кв.м.

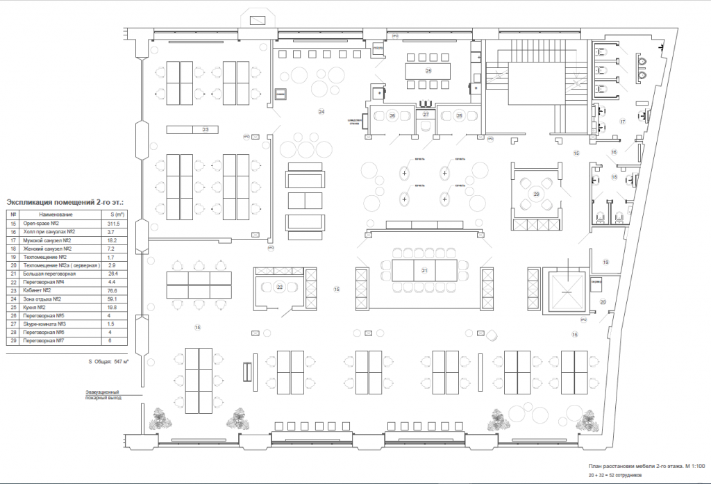
      Загальна площа: 605 кв.м

      Поверх: 2

      К-ть поверхів: 4

      Предлагается для первого арендатора стильный офис в стиле лофт, расположенный в полностью отреставрированном здании на улице Коцарской, 2/4, г. Харьков.

      Светлый, просторный, минималистичный стиль и только яркие акценты.
      Панорамные окна, много воздуха, стеклянные перегородки, не скрадывают пространство и создающие ощущение простора и свободы.

      Предусмотрена практичная система хранения, органично вписанная в интерьер офисного пространства, кухня с бытовой техникой и мебелью, зона отдыха.
      Стильный холл, консьерж-ресепшионист и возможность круглосуточного доступа в бизнес-центр.

      Офисное помещение находится на финальной стадии ремонта.

      Технические характеристики:
      • 2 этаж;
      • площадь 605 м2;
      • 52 рабочих места;
      • смешанная планировка (кабинет на 20 мест и 32 места опен спейс);
      • большая переговорная для 20 человек;
      • 5 переговорных комнат для 2-5 человек;
      • кухня с бытовой техникой и зона отдыха;
      • 5 санузлов;
      • лифт;
      • высота потолка 3,5 м
      • панорамные окна;
      • инверторные кондиционеры и приточно-вытяжная вентиляция;
      • серверная и кладовая;

      Оплата:
      13 USD/м2 арендная ставка + дополнительно оплачиваются эксплуатационные и коммунальные услуги.

      Преимущества:
      • Удобная транспортная развязка:
      - Центральный рынок - 300 м (пешком 3-4 мин);
      - Пл.Конституции - 713 м (пешком 8 мин);
      - Исторический Музей - 670 м (пешком 8 мин).

      • Развитая инфраструктура, рядом:
      - Fabrika space (ресторан и коворкинг с ивент зоной);
      - McDonald's;
      - Центральный рынок;
      - Дом торговли;
      - набережная р. Лопань;

      На фото офис в процессе ремонта и план расстановки мебели, в том числе рабочих мест.

      Остались вопросы?
      Пишите Viber / Telegram или звоните + 38 (095) 769-73-33, мы с радостью Вам ответим.
      компания stepREALTY

      Надіслати скаргу

      Закрити
      Поскаржитися на об'єкт «ул. Кацарская, 2/4 (г. Харьков, Ленинский район)»
      Ваш коментар:(Необов'язково)
      Ваша скарга буде надіслана ріелтору, що розмістив об'єкт, а також адміністрації сайту АФНУ.
      Ваше ім'я:
      (Обов'язково)
      Ваш e-mail для відповіді:
      (Обов'язково)

      Коментарі