ул. Маршала Бажанова, 28 — Продається офіс в новобудові
(г. Харьков, Киевский район)
1250 $ за кв.м.
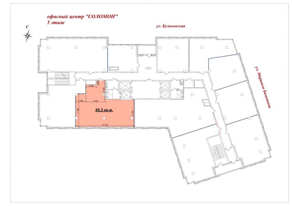
Загальна площа: 95 кв.м
Кімнат: 1
Поверх: 5
К-ть поверхів: 10
Продажа офиса в Бизнес Центре класса «А». Новый БЦ «Соломон» расположен в центре города в 5 минутах от м. Архитектора Бекетова. Международный бизнес-центр Соломон – красивое и респектабельное здание. Уникальное месторасположение и современный проект гарантируют престижность комплекса и оптимальные условия для ведения успешного бизнеса. Объект класса А со временем не теряет в цене. Офисный центр «Соломон» - это высокие технологии в формате современного делового центра. Презентабельный хол, скоростные лифты, подземный и наземный паркинг. Системы пожаротушения, общая принудительная вентиляция, высокоскоростной интернет.