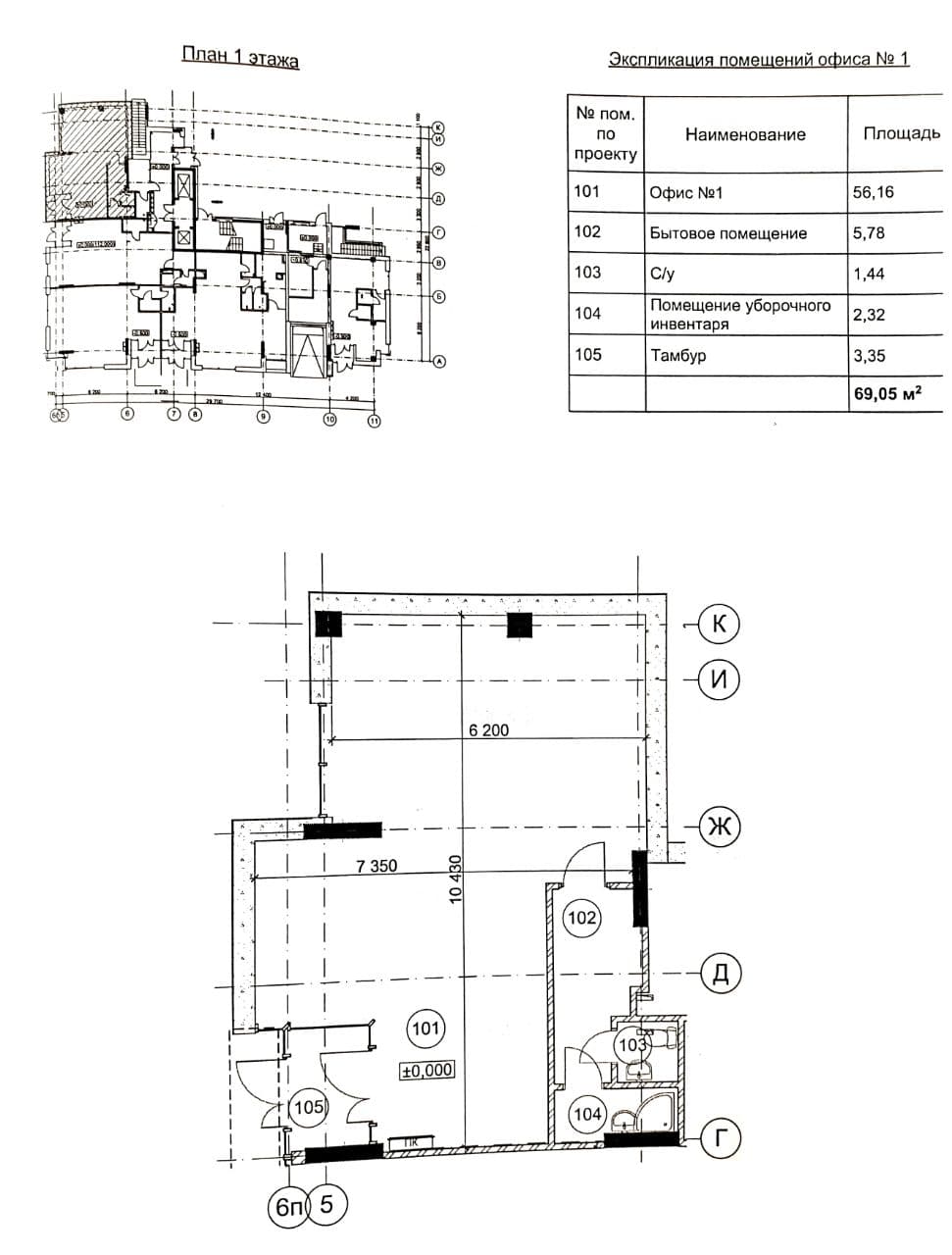
Эксклюзивная продажа (переуступка). От собственника комерциооных помещений ЖК “Кристал” Офисное помещение площадью 69.05 кв. м высота потолков 4м,. От Застройщика ЖС-2 . По адресу г. Харьков ул. Молочная 56, 1-ый этаж 15-этажного здания . Имеется отдельный вход , витрина , централизованная канализация и водопровод , автономное отопление. Можно использовать для магазина , салона , общественного питания , офиса , стоматологии , и нотариата.