Вхід на сайт

Ел. пошта:
Пароль:

Реєстрація на сайті

Призвіще: Область:
Ім'я: Населений пункт:
    По батькові: Номер телефону:
    Ел. пошта: Компанія:
      Пароль: Посада:
      Повторіть пароль: Рік початку роботи:
      Фото:
      З правилами розміщення об'єктів погоджуюсь

      Забули пароль?

      Вкажіть ел. пошту — ми надішлемо Вам новий пароль для входу
      Ел. пошта:

      Проблема на сайті

      Закрити
      Ваш e-mail:
      (необов'язково)
      Розкажіть нам, що сталось

      без комісії Приозерна, 62 — Продається будинок

      (пгт. Гостомель, г. Ирпень)

      110000 $

      Загальна площа: 110 кв.м

      Площа ділянки: 5 сот

      Кімнат: 45

      К-ть поверхів: 2

      Продаж двоповерхового будинку в м.Гостомель, вул.Приозерна 62
      Загальна площа: 110/45/31 м.кв
      Земельна ділянка: 5 соток
      кухня-студіо з панорманими вікнами, великою терасою 25м.кв. та з виходом у подвір’я з видом на ліс і парк, 4 кімнати, 2 с/в

      Будівництво:
      стіни - газоблок 300
      утеплення фасаду - 100
      оздоблення фасаду - декоративна штукатурка та камінь,
      перекриття - з/б
      дах - металочерепиця.
      Внутрішне наповнення:
      сходи - бетонні сход
      вікна - металопластикові ламіновані
      вхідні двері - склопакет
      Коммунікації:
      електрика - введено в будинок 3ф 16Квт
      вода - скважина 35м
      каналізація - септик
      тепла підлога - 1 эт, 2 эт (с/в)
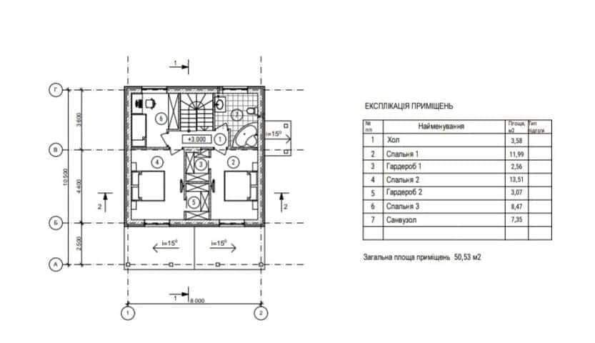
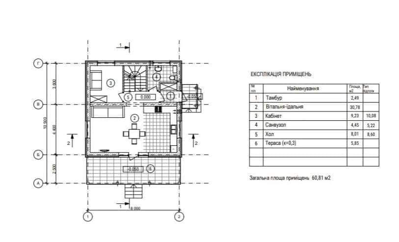
      Планування:
      1 поверх: коридор, с/в, кімната, кухня-студія с панорамними вікнами та виходом на простору терасу з видом на ліс і парк.
      2 поверх: 3 кімнати, с/в
      Територія:
      паркан - стовбці з облицювальної цегли
      в'їздна зона - відкатні ворота

      Договір купівлі-продажу. Заходити на ремонт у вересні 2021р

      Вартість 110 000 у.о.
      Всі додаткові питання по телефону:

      Надіслати скаргу

      Закрити
      Поскаржитися на об'єкт «Приозерна, 62 (пгт. Гостомель, г. Ирпень)»
      Ваш коментар:(Необов'язково)
      Ваша скарга буде надіслана ріелтору, що розмістив об'єкт, а також адміністрації сайту АФНУ.
      Ваше ім'я:
      (Обов'язково)
      Ваш e-mail для відповіді:
      (Обов'язково)

      Коментарі