Клочківська вул., 117 — Продається квартира в новобудові
(г. Харьков, Дзержинский район)
115000 $
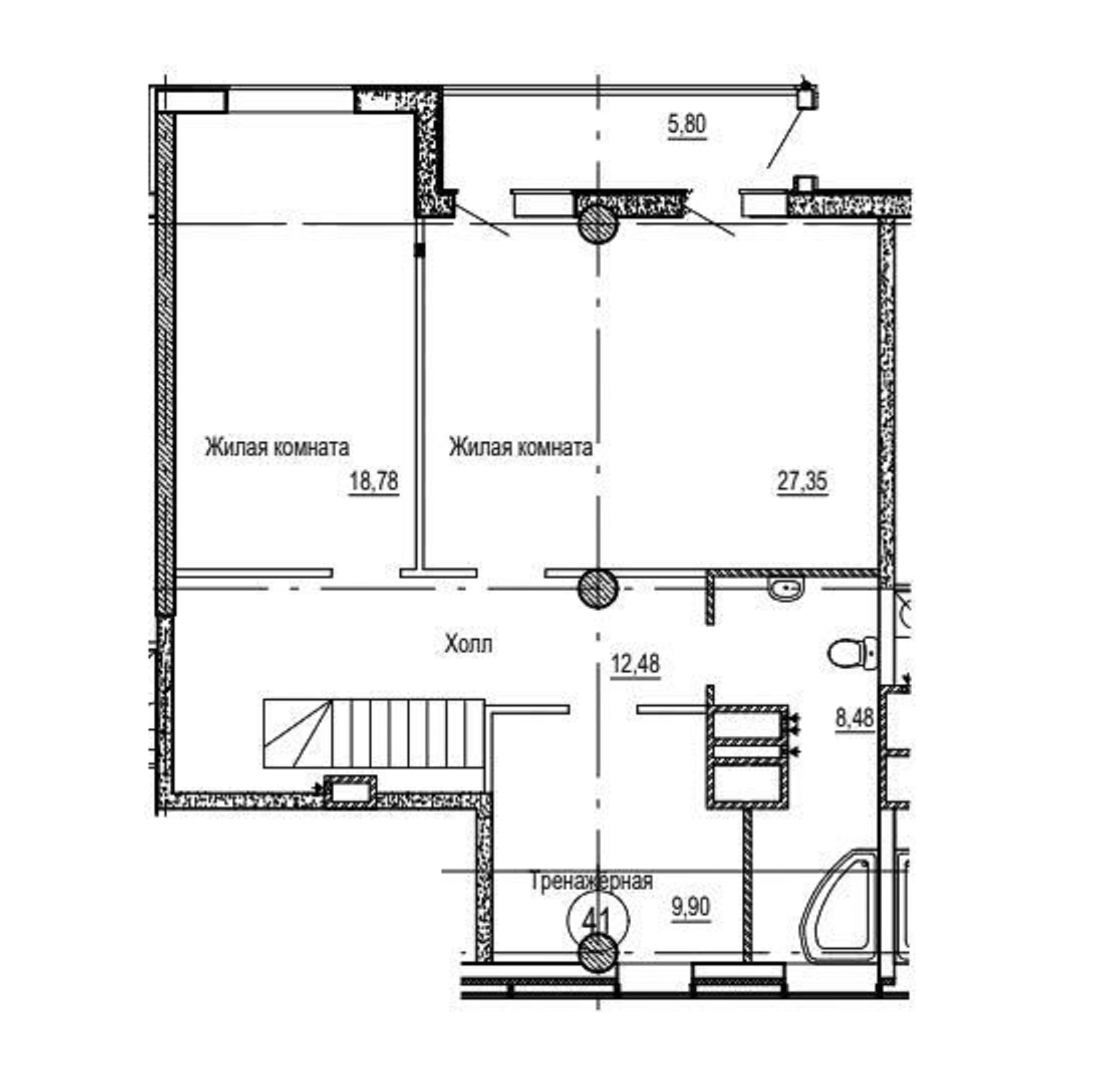
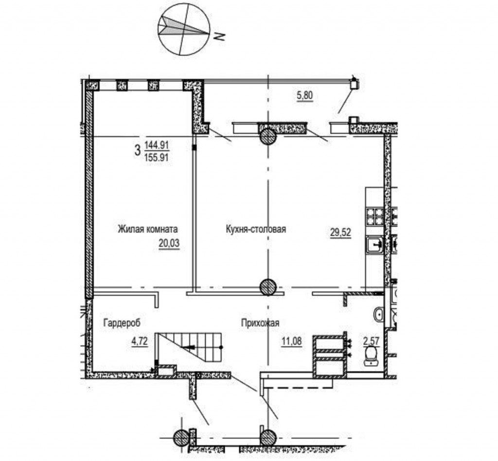
Загальна площа: 170 кв.м
Жила площа: 66 кв.м
Площа кухні: 30 кв.м
Кімнат: 4
Поверх: 16
К-ть поверхів: 17
Продам 4-кімнатну квартиру у житловому комплексі бізнес-класу "Павлівський квартал", вул. Клочківська, 117 біля метро Наукова.
Код об'єкта SF-2-235-636
Житловий комплекс бізнес-класу розташований у районі, наближеному до центру. Біля будинку зупинки транспорту, через дорогу – супермаркет Восторг. Поруч метро, супермаркети Клас, Зріст, АТБ, будівельний супермаркет Будмен, фітнес-клуб YOD, школи, дитсадки.
Продам 3-кім. квартиру в ЖК Дует, Цілиноградська, М Олексіївська Продам 3-кімнатну квартиру в житловому комплексі "Дует" на вул. Мирослава Мисли (Цілиноградська), 58А. До станції метро "Олексіївська" 5 хвилин пішки.