без комісії
Петлюри, 21 — Продається офіс в новобудові
(г. Бровары)
75000 $
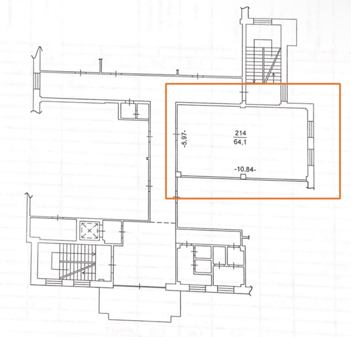
Загальна площа: 64 кв.м
Кімнат: 1
Поверх: 2
К-ть поверхів: 3
Продається нежитлове приміщення в місті Бровари, ідеально підходить для різних видів бізнесу! • Площа: 64 квадратних метри. • Висота стелі: 3 метри. • Розташування: 2 поверх з 3. • Ліфт та пандус для інвалідів доступні. • Приміщення під ремонт (після будівельників), що дає вам можливість втілити свої ідеї та вимоги. • Підключені комунікації: каналізація, вода, світло (5-7 кВт). • Є можливість облаштувати санвузол в приміщенні. А також є санвузол на поверсі.
• В цьому будинку вже працюють офіси , англійська школа, стоматологія, косметологічний салон, театр танцю, студія малюк і мама. • Поруч знаходиться ТРЦ “Термінал” , аптека, транспорт. Це ідеальна можливість для розгортання кафе, магазину, офісу, студії, аптеки, або будь-якого іншого бізнесу. Звертайтесь за додатковою інформацією та переглядом!