Вхід на сайт

Ел. пошта:
Пароль:

Реєстрація на сайті

Призвіще: Область:
Ім'я: Населений пункт:
    По батькові: Номер телефону:
    Ел. пошта: Компанія:
      Пароль: Посада:
      Повторіть пароль: Рік початку роботи:
      Фото:
      З правилами розміщення об'єктів погоджуюсь

      Забули пароль?

      Вкажіть ел. пошту — ми надішлемо Вам новий пароль для входу
      Ел. пошта:

      Проблема на сайті

      Закрити
      Ваш e-mail:
      (необов'язково)
      Розкажіть нам, що сталось

      без комісії Потебні, 71 — Продається склад

      (г. Луцк)

      54000 $

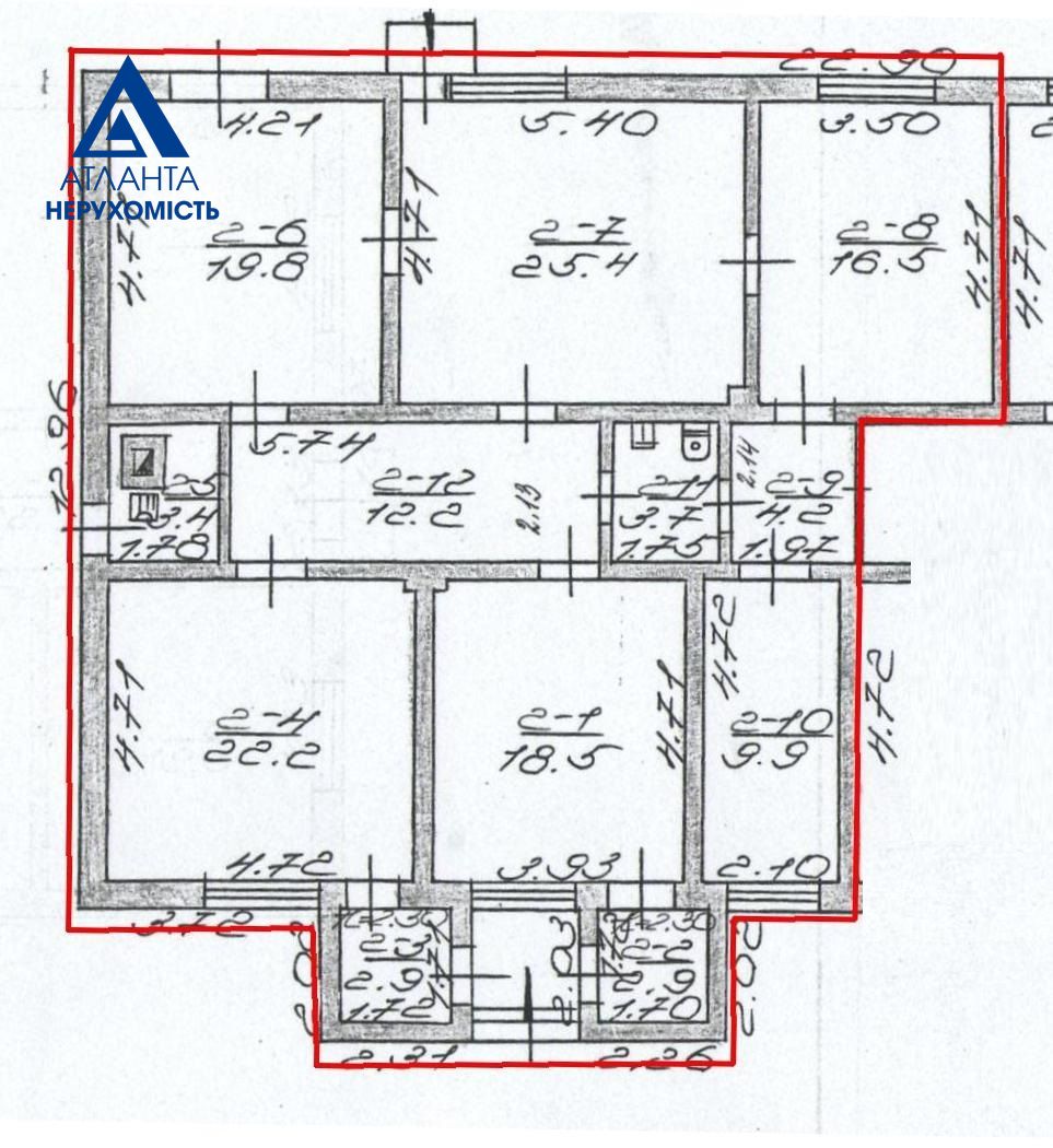
      Загальна площа: 141 кв.м

      Продаж офісно-виробничого приміщення по вул. Потебні

      Розташування: по вул. Потебні, 71, 100 м до перехрестя Потебні-Гнідавська.
      Зручна транспортна розв’язка:
      0 відстань до вул. Об’їздна – 2 км
      0 відстань до вул. Львівська – 1,2 км
      0 відстань до вул. Лесі Українки – 2 км.

      Характеристики:
      • 1-ий поверх
      • 141,6 кв.м.
      • 3 входи в приміщення
      • Санвузол
      • Висота стелі- 3м
      • Кабінетна система
      • Місце під фасадну рекламну вивіску

      Комунікації: е-потужність 10 кВт (з можливістю збільшення), водопостачання та каналізація.


      Вартість продажу - 54 000 USD. (Без комісії для покупця!)

      менеджер об'єкту
      Ольга Синиця
      095 805 1772
      @olha_komercia

      Надіслати скаргу

      Закрити
      Поскаржитися на об'єкт «Потебні, 71 (г. Луцк)»
      Ваш коментар:(Необов'язково)
      Ваша скарга буде надіслана ріелтору, що розмістив об'єкт, а також адміністрації сайту АФНУ.
      Ваше ім'я:
      (Обов'язково)
      Ваш e-mail для відповіді:
      (Обов'язково)

      Коментарі